Aménager ses combles pour créer un nouvel espace de vie est devenu un projet phare pour de nombreux propriétaires souhaitant optimiser leur habitat sans déménager. Les combles de 60m2 offrent un potentiel considérable pour transformer un volume souvent sous-exploité en un lieu à la fois pratique et accueillant. À Paris comme en Île-de-France, où l’espace se fait rare et précieux, ces transformations prennent tout leur sens, permettant d’agrandir un appartement ou une maison tout en valorisant le patrimoine immobilier. Que ce soit pour créer un bureau lumineux, une chambre d’amis chaleureuse ou un coin détente original, ce type d’aménagement sait se révéler une solution économique et esthétique, surtout lorsqu’il est réalisé par des professionnels expérimentés comme ceux de Watt+ Père & Fils.
La rénovation des combles soulève cependant plusieurs défis techniques et réglementaires : hauteur sous plafond, isolation thermique, contraintes de la charpente, accès sécurisé, respect des normes d’urbanisme, tout cela doit être considéré pour garantir un espace de vie confortable et durable. Par ailleurs, penser à l’agencement intérieur, aux rangements sur mesure et à l’éclairage naturel et artificiel, revient à conjuguer esthétisme et fonctionnalité. La réussite d’un projet d’aménagement des combles repose aussi sur une planification rigoureuse des travaux, un budget réaliste et l’accompagnement d’artisans compétents.
Somme toute, la transformation de 60 m2 de combles se présente comme une opportunité exceptionnelle d’ajouter une réelle valeur à un logement, tout en créant un espace où il fait bon vivre. Avec des conseils avisés, une vision claire et des idées d’aménagement adaptées, ces combles méconnus peuvent devenir le cœur battant d’une maison réinventée.
En bref :
- Optimisez chaque mètre carré : mesurer précisément la hauteur sous plafond et identifier les contraintes structurelles pour un agencement réussi.
- Choix multiple d’usages : bureau, chambre d’amis, espace détente ou atelier, les combles se prêtent à toutes vos envies.
- Meubles sur mesure et rangements astucieux : personnaliser votre aménagement pour gagner en fonctionnalité sans encombrement.
- Éclairage combiné : privilégier la lumière naturelle via des fenêtres de toit, associée à un éclairage artificiel adapté.
- Respect des normes et budget maîtrisé : consulter un professionnel et planifier soigneusement pour assurer la réussite du chantier.
Évaluer la faisabilité et les dimensions de votre projet d’aménagement de combles 60m2
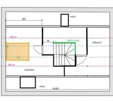
Avant toute initiative d’aménagement, il est fondamental de bien évaluer l’espace disponible et sa compatibilité avec un usage habitable. La surface brute peut ne pas correspondre entièrement à une zone exploitable, la hauteur sous plafond et la structure de la charpente jouant un rôle crucial dans la viabilité du projet. Une hauteur minimale d’environ 1,80 mètre est requise pour garantir un confort d’usage. Ce seuil permet d’éviter les zones peu agréables et d’optimiser la distribution de l’espace.
Les caractéristiques de la toiture, en particulier la pente, déterminent directement la profondeur de l’espace utilisé. Plus la pente est raide, plus la surface habitable augmente. Il convient donc d’effectuer un relevé minutieux des dimensions avec un professionnel pour éviter toute surprise. Par exemple, un comble avec une charpente traditionnelle laisse souvent plus de liberté en termes de volumes que des fermettes industrielles, qui réduisent l’espace libre.
Les contraintes structurelles telles que la présence de poutres apparentes peuvent devenir de véritables atouts design lorsqu’elles sont correctement intégrées dans l’aménagement intérieur. Elles participent à créer une atmosphère chaleureuse et authentique, donnant du cachet à votre nouvel espace. Pour ce type de chantier, faire appel à une entreprise spécialisée en rénovation sur mesure, comme Watt+ Père & Fils, permet d’obtenir une expertise indispensable pour optimiser au mieux votre projet.
- Mesurer précisément la hauteur sous plafond à plusieurs endroits.
- Identifier les zones à faible hauteur et leur impact sur l’usage.
- Contrôler la nature de la charpente et sa capacité à soutenir des modifications.
- Vérifier l’accès aux combles pour le transport de matériaux et l’installation.
- Consulter les règles d’urbanisme locales auprès de la mairie.
| Critère | Impact sur l’aménagement | Solution envisageable |
|---|---|---|
| Hauteur sous plafond < 1,80 m | Limite les zones habitées | Mobilier bas, rangements encastrés, cloisonnement adapté |
| Charpente traditionnelle | Surface plus libre, intégration esthétique des poutres | Exploitation maximale de la hauteur |
| Fermettes industrielles | Espaces plus confinés | Concevoir des mezzanines ou espaces ouverts |
| Accès par échelle ou trappe | Protège l’intimité mais complexifie l’accès | Installer un escalier compact ou escamotable |

Idées inspirantes d’aménagement pour vos combles de 60m2
Les combles de 60m2 offrent un éventail d’options pour transformer cet espace sous-utilisé en une pièce polyvalente et confortable. Choisir l’usage idéal dépend avant tout de vos besoins ; que ce soit pour accueillir des proches, créer un bureau ou un coin détente. Voici quelques idées à envisager pour exploiter au mieux cette surface.
- Bureau à domicile : avec la montée du télétravail, un espace de travail lumineux sous les toits est très appréciable. Privilégiez un grand plan de travail face à une fenêtre de toit pour bénéficier d’une lumière naturelle optimale.
- Chambre d’amis : grâce à une ambiance cosy rehaussée par des coloris doux et des textiles confortables, cet espace devient un vrai refuge pour vos visiteurs.
- Espace de loisirs : salle de jeux pour enfants, coin lecture ou atelier artistique, les combles sont bien adaptés pour ces usages.
- Suite parentale : intégrant une salle de bain, elle valorise votre habitation tout en vous offrant un espace privatif.
Un avantage méconnu réside dans la qualité perçue de ces espaces sous les toits, lesquels procurent parfois une sensation plus intime et reposante. Une étude récente de l’Université de Paris a mis en lumière l’impact positif sur le sommeil dans ces environnements, ce qui peut être un atout si vous envisagez de transformer vos combles en chambre ou suite.
| Usage | Points forts | Points à considérer |
|---|---|---|
| Bureau | Lumière naturelle, calme, espace dédié | Gestion des câbles, rangements ergonomiques |
| Chambre d’amis | Ambiance chaleureuse, espace privé | Isolation phonique, ventilation |
| Espace de loisirs | Polyvalent, convivial | Aménagement modulable, rangements intégrés |
| Suite parentale | Confort et intimité, plus-value immobilière | Installation plomberie et électricité, budget plus élevé |
Les enseignes comme Leroy Merlin, IKEA et Castorama proposent d’ailleurs de nombreux équipements, mobiliers et solutions adaptées aux configurations atypiques des combles. Grâce à leurs collections modulables, vous pouvez personnaliser chaque espace tout en respectant vos contraintes.
Optimiser l’agencement et les aménagements intérieurs dans vos combles aménagés
Le secret d’un aménagement réussi de combles repose dans une optimisation rigoureuse de chaque recoin. Les espaces sous-pente ou à faible hauteur sont souvent perçus comme des contraintes, mais ils se transforment en véritables zones fonctionnelles grâce à des solutions d’aménagement ingénieuses.
- Meubles sur mesure : adaptés aux dimensions spécifiques des combles, ils exploitent pleinement l’espace grâce à des formes personnalisées.
- Rangements encastrés : étagères intégrées sous pente, placards ajustés dans les niches pour éviter tout encombrement.
- Mobilier multifonction : lits avec tiroirs, tables relevables, et bancs de rangement, offrant gain de place et praticité.
- Distribution fluide : circulation aisée entre les différentes zones pour un usage confortable.
- Choix des matériaux : privilégier des matières claires et naturelles pour amplifier la sensation d’espace.
Un bon accompagnement professionnel peut vous aider à dessiner des plans parfaitement adaptés à la structure et à vos attentes. Pensez à explorer des solutions design proposées par des entreprises spécialisées en rénovation intérieure, qui maitrisent ces configurations particulières.
| Solution | Avantages | Conseils pratique |
|---|---|---|
| Meubles sur mesure | Utilisation optimale, esthétique personnalisée | Faire appel à un artisan local ou enseignes comme Schmidt ou Lapeyre |
| Rangements intégrés | Gain de place, ordre | Penser à la modularité et à la facilité d’accès |
| Mobilier multifonctionnel | Polyvalence, économie d’espace | Choisir des meubles légers et mobiles |
| Délimitation des espaces | Organisation, confort | Utiliser des paravents ou étagères basses |
Les bonnes pratiques pour un éclairage efficace dans les combles de 60m2
L’éclairage adapté contribue largement au confort et à la convivialité de votre nouvel espace sous les toits. Combinée à la lumière naturelle provenant des fenêtres de toit, l’éclairage artificiel doit être pensé en termes de fonctionnalité et d’ambiance.
- Fenêtres de toit : indispensables pour bénéficier de la lumière du jour, elles sont un atout esthétique et écologique.
- Lampes encastrées : discrètes et économiques en espace, elles permettent un éclairage fonctionnel ciblé.
- Lampadaires et lampes décoratives : apportent chaleur et personnalisation à la pièce.
- Variateurs : pour ajuster la luminosité selon les besoins et moments de la journée.
Voici une synthèse comparative des différentes options disponibles pour l’éclairage des combles :
| Type d’éclairage | Avantages | Inconvénients |
|---|---|---|
| Fenêtres de toit | Lumière naturelle abondante, vue dégagée | Coût d’installation élevé, travaux de structure |
| Lampes encastrées | Design discret, éclairage ciblé | Installation technique, coût intermédiaire |
| Lampadaires et lampes de table | Souplesse de positionnement, ambiance chaleureuse | Occupe de l’espace, éclairage moins uniforme |
De nombreux artisans et entreprises spécialisées dans la rénovation intérieure, comme Watt+ Père & Fils, collaborent avec des fournisseurs réputés tels que Habitat, Saint Maclou ou Alinéa pour offrir des solutions d’éclairage à la fois performantes et esthétiques.
Les étapes clés pour réussir la rénovation complète de vos combles de 60m2
Une rénovation réussie passe par un enchaînement précis d’étapes, alliant expertise technique et maîtrise du planning. Voici les phases essentielles :
- Étude de faisabilité : diagnostic de la charpente, mesures précises et conformité réglementaire.
- Conception du plan : en collaboration avec un architecte ou designer pour optimiser l’usage et la circulation.
- Préparation du chantier : fourniture des matériaux, mise en place des protections et accès.
- Travaux d’aménagement : pose du plancher, isolation, installation des fenêtres de toit, cloisonnements et équipements techniques.
- Finitions : peinture, revêtements, agencement mobilier et installation électrique.
- Contrôle final : vérification de la conformité et réception des travaux.
En optant pour un service clé en main avec une entreprise de rénovation de confiance, vous profitez d’un suivi régulier, de conseils personnalisés et d’un respect rigoureux des délais et budgets. Ce mode d’intervention est particulièrement adapté aux projets en Île-de-France où les contraintes logistiques sont importantes.
| Étape | Objectif | Durée indicative |
|---|---|---|
| Faisabilité et étude technique | Valider que l’espace peut être aménagé | 1 à 2 semaines |
| Planification et conception | Optimiser la répartition des espaces | 2 à 3 semaines |
| Préparation des travaux | Approvisionnement et sécurisation | 1 semaine |
| Construction et aménagement | Réalisations techniques et esthétiques | 4 à 6 semaines |
| Finitions et contrôle | Finaliser la décoration et vérifier les normes | 1 à 2 semaines |

Budget et coûts à prévoir pour l’aménagement des combles de 60 m2
Le budget pour aménager 60 m2 de combles varie en fonction des travaux à réaliser, du choix des matériaux, des équipements et des prestations, ainsi que du niveau de finition souhaité. En région parisienne et Île-de-France, le coût moyen tourne autour de 1 200 à 2 000 euros par mètre carré pour un aménagement complet incluant isolation, électricité, plomberie et finitions.
Il est essentiel d’intégrer dans votre calcul les postes suivants :
- Étude technique et plans
- Travaux de charpente et structure
- Isolation thermique et phonique
- Installation des fenêtres de toit
- Création des cloisons et revêtements
- Outillage et main-d’œuvre
- Mobilier sur mesure et éclairage
Pour un pilotage optimal, le recours à un professionnel expérimenté permet d’éviter les dépassements de budget imprévus. Des ressources telles que les conseils pour gérer votre budget aménagement vous aideront à équilibrer vos priorités.
| Poste de dépense | Fourchette de prix (€ / m²) | Remarques |
|---|---|---|
| Étude et plans | 30 – 60 | Essentiels pour éviter les erreurs |
| Charpente et structure | 100 – 250 | Selon état initial et modifications nécessaires |
| Isolation | 80 – 150 | Varie selon matériaux et épaisseur |
| Fenêtres de toit | 150 – 400 | Fonction du nombre et des dimensions |
| Cloisons et finitions | 200 – 350 | Peinture, revêtements, équipements |
| Main-d’œuvre | 300 – 700 | Variables selon entreprise, complexité |
| Mobilier sur mesure | 100 – 200 | Selon choix de matériaux et design |
Les partenaires incontournables pour réussir votre aménagement de combles à Paris et Île-de-France
Pour garantir un projet d’aménagement en toute sérénité, s’appuyer sur une entreprise familiale de rénovation reconnue et expérimentée s’impose. Watt+ Père & Fils offre un accompagnement complet, du diagnostic initial aux finitions, pour vous aider à concrétiser votre rêve.
- Expertise locale : connaissance approfondie des réglementations en vigueur à Paris et en Île-de-France.
- Services clés en main : du gros œuvre aux aménagements finaux, avec suivi personnalisé.
- Intervention rapide : un atout précieux dans les zones urbaines où les délais comptent.
- Qualité et satisfaction : priorité donnée à la pérennité des travaux et à l’écoute client.
La réussite de votre chantier passe aussi par le choix de matériaux et mobilier à la hauteur de vos attentes, disponibles dans des enseignes telles que Maisons du Monde, Brico Dépôt ou Lapeyre. Ces fournisseurs offrent une large gamme d’options adaptées aux espaces spécifiques des combles et vous permettent de personnaliser votre décoration intérieure tout en maîtrisant le budget.
Conseils pratiques pour le suivi et l’entretien de vos combles aménagés
Une fois vos combles transformés en espace de vie, le suivi régulier et l’entretien sont indispensables pour prolonger la qualité et le confort de cet environnement. La vigilance sur certains points techniques est essentielle pour ne pas compromettre l’isolation ni l’étanchéité, valeurs centrales dans la réussite de la rénovation.
- Contrôler l’isolation : vérifier qu’aucun pont thermique n’apparaît, surtout aux jonctions des murs et de la toiture.
- Surveiller l’aération : bien entretenir les fenêtres de toit pour éviter moisissures et condensation.
- Inspecter les charpentes et structures : détecter toute infiltration d’eau ou déformation qui pourrait compromettre la solidité.
- Entretenir les installations électriques : vérifier l’état des luminaires et câblages.
- Nettoyer régulièrement les surfaces et meubles : poussières et débris ont tendance à s’accumuler sous les toits.
| Point contrôle | Fréquence recommandée | Action recommandée |
|---|---|---|
| Isolation | Annuellement | Inspection visuelle et thermographie |
| Ventilation | Saisonnièrement | Nettoyage des fenêtres et détecteurs d’humidité |
| Charpente | Annuellement | Recherche de fuites ou déformations |
| Électricité | Annuellement | Test des luminaires et vérification câblages |
L’appui d’une entreprise spécialisée en rénovation, notamment pour un contrôle périodique ou une intervention technique, peut s’avérer judicieux pour préserver la qualité de votre espace. Par exemple, recourir aux services réguliers d’artisans formés à l’entretien des combles assure la pérennité de votre investissement.

Calculateur d’aménagement de combles
Quelle est la hauteur minimale pour aménager des combles ?
La hauteur recommandée pour une pièce habitable sous les combles est généralement de 1,80 mètre afin d’assurer le confort et la fonctionnalité de la pièce.
Quels sont les avantages d’un meuble sur mesure pour les combles ?
Les meubles sur mesure s’adaptent parfaitement aux angles et hauteurs variables des combles, optimisant ainsi l’espace disponible et apportant une touche esthétique personnalisée.
Comment assurer une bonne isolation thermique dans les combles ?
L’isolation doit être réalisée avec des matériaux performants posés de manière continue afin d’éviter les ponts thermiques, surtout à la jonction de la toiture et des murs.
Quel budget prévoir pour un aménagement complet de 60m2 de combles ?
Le coût global peut varier entre 70 000 et 120 000 euros en fonction des travaux, matériaux et finitions choisis, incluant la main d’œuvre.
Faut-il un permis pour aménager ses combles à Paris ?
Oui, selon la surface créée et les règles d’urbanisme locales, une déclaration préalable ou un permis de construire peut être nécessaire. Il est important de consulter la mairie avant de démarrer les travaux.












































































